105, 251 Spruce Street , Rural Red Deer County. T4E 1B4
Description
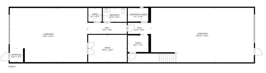
Currently leased until March 14, 2028 to a low impact tenant-6.4% cap rate. (Fenced storage compound does not form part of this lease and could possibly be leased to generate additional income to increase cap rate to over 7.5%, or used for storage for buyer.). Ideal south side location in Piper Creek Industrial park, just south of the Westerner grounds/Centrium. This building was constructed in 2015 and shows near new, with a 2751 sq. ft. footprint (Condo plan measurement) and 3332 total developed space (Interior measurements) including mezzanine with exterior fenced storage compound. This incredible space has both a front drive 14 ft. overhead door and a rear drive 14 ft. overhead door with two separate bays and office space in the centre. The possibilities are endless, as the front could be used as a show room or additional shop space, or could be sub-let to a tenant. Also ideal deal for the hobbyist or business owner that desires some extra space for a man cave. Both the front and back shop/showroom spaces have overhead radiant heat, front bay is 24'x 34', rear bay is 24'x55'. The office mezzanine has force air. The upper mezzanine consists of two offices, a bathroom and a kitchen room. The lower central space below the mezzanine has another large room ideal for show room/reception or office space, plus two additional rooms that could be used for storage or small office and another bathroom. Front bay flooring has been left bare concrete as the new owner may decide they want carpet for a showroom, epoxy, paint, or leave as is, The front parking area is paved as well as the rear access and parking.
Listing Information
For fast response, please email us via the “Inquiry Via Email” button with your contact information.
Listing MLS#:A2265646
105, 251 Spruce Street ,
Rural Red Deer County. T4E 1B4
Liang Commercial Real Estate
To purchase a business or property, please visit "Our People", to find a commercial experts who specialize in the type of business or property you are looking for, and agents speak your langauges and have office in your city.
This listing is presented by CENTURY 21 BRAVO REALTY, courtesy of "RCR - Royal Carpet Realty Ltd." listing brokerage.
Google map



